Suchbegriff
Einleitung
Wir über uns
Allgemeine Grundlagen
Einbaurichtlinien + Montageanleitungen
Werkstoffe für Zargen
Beschichtungen
Dichtungen
Bandunterkonstruktionen
Mauerwerkszargen
Norm-Profile
Eckzargen
Umfassungszargen
Schiebtürzargen
Mehrteilige Zargen
Oberlicht- Seitenteilzargen
Fensterzargen
Anker- Befestigungssysteme
Eckanker
Ruck-Zuck-Anker
Fugenanker
Drahtanker
Wellanker
Flacheisenanker fuer Betoneingiessverfahren
Flacheisenanker mit Bohrung in der Leibung
Duebelstanzung in der Leibung
Duebelstanzung in der Leibung als Blockzarge
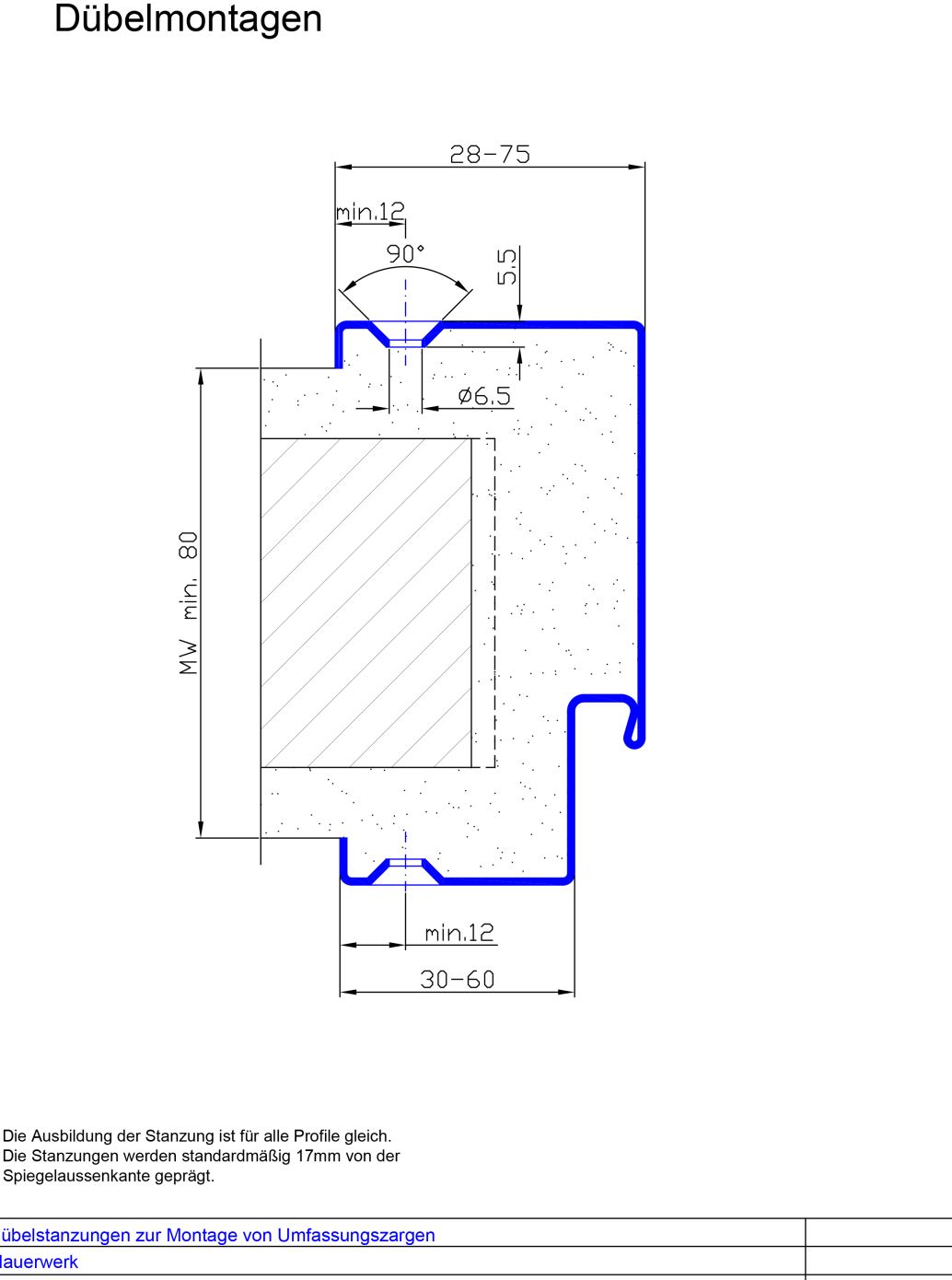
Duebelstanzung im Spiegel
Duebelstanzug schraeg in der Nut
Duebelstanzug schraeg in der Nut Profil 22
Propelleranker
M 09.06.02.1-00-19 Duebelstanzung im Falz
Brandschutzfenster
Ständerwerk
Norm-Profile
Eckzargen
Umfassungszargen
Schiebetürzargen
Mehrteilige Zargen
Oberlicht- Seitenteilzargen
Fenster
Anker- Befestigungssysteme
Brandschutzfenster
Anhang
Schwellen
Obentürschliesser
Schlossbereich
E-Oeffner - Fluchttüroeffner
Magnetkontakte
Riegelschaltkontakte
Kabelübergänge
Mehrfachverriegelungen
BSS - Sperrelemente - Türspaltsicherung
Kippfenster - Schiebefenster
Montagevideos
Mauerwerkszargen einteilig
Mauerwerkszargen zweiteilig
Ständerwerkszargen einteilig
Ständerwerkszargen zweiteilig
Bestellformulare
Startseite
Mauerwerkszargen
Anker- Befestigungssysteme
Duebelstanzung im Spiegel
Norm-Profile
Eckzargen
Umfassungszargen
Schiebtürzargen
Mehrteilige Zargen
Oberlicht- Seitenteilzargen
Fensterzargen
Anker- Befestigungssysteme
Eckanker
Ruck-Zuck-Anker
Fugenanker
Drahtanker
Wellanker
Flacheisenanker fuer Betoneingiessverfahren
Flacheisenanker mit Bohrung in der Leibung
Duebelstanzung in der Leibung
Duebelstanzung in der Leibung als Blockzarge
Duebelstanzung im Spiegel
Duebelstanzug schraeg in der Nut
Duebelstanzug schraeg in der Nut Profil 22
Propelleranker
M 09.06.02.1-00-19 Duebelstanzung im Falz
Brandschutzfenster
PDF Download
Copyright 2013-2024 Novoferm Vertriebs GmbH