Suchbegriff
Einleitung
Wir über uns
Allgemeine Grundlagen
Einbaurichtlinien + Montageanleitungen
Werkstoffe für Zargen
Beschichtungen
Dichtungen
Bandunterkonstruktionen
Mauerwerkszargen
Norm-Profile
Eckzargen
Umfassungszargen
Schiebtürzargen
Mehrteilige Zargen
Oberlicht- Seitenteilzargen
Fensterzargen
Anker- Befestigungssysteme
Brandschutzfenster
F 30
mit Falzverglasung
mit Falzverglasung
mit Falzverglasung Schattennut
mit Falzverglasung Schattennut
mit Falzverglasung Zierfalz
mit Falzverglasung Zierfalz
mit Falzverglasung beidseitig
mit Falzverglasung beidseitig
mit Falzverglasung
mit Falzverglasung
mit Falzverglasung Schattennut
mit Falzverglasung
mit Falzverglasung Schattennut
mit Falzverglasung Zierfalz
mit Falzverglasung Zierfalz
Falzverglasung beidseitig
mit Falzverglasung beidseitig
mit Falzverglasung
mit Falzverglasung
mit Falzverglasung Schattennut
mit Falzverglasung Schattennut
mit Falzverglasung Zierfalz
mit Falzverglasung Schattennut
mit Falzverglasung Zierfalz
mit Falzverglasung beidseitig
mit Falzverglasung beidseitig
mit Falzverglasung Schattennut
mit Falzverglasung Zierfalz
mit Falzverglasung Zierfalz
mit Falzverglasung beidseitig
mit Falzverglasung beidseitig
mit Falzverglasung
2-teilig mit Falzverglasung
2-teilig mit Falzverglasung Schattennut
2-teilig mit Falzverglasung Zierfalz
2-teilig mit Falzverglasung beidseitig
2-teilig mit Falzverglasung
2-teilig mit Falzverglasung Schattennut
2-teilig Falzverglasung Zierfalz
2-teilig Falzverglasung beidseitig
2-teilig mit Falzverglasung Schattennut
2-teilig mit Falzverglasung Zierfalz
2-teilig mit Falzverglasung beidseitig
2-teilig mit Falzverglasung
2-teilig mit Falzverglasung Schattennut
2-teilig Falzverglasung Zierfalz
2-teilig Falzverglasung beidseitig
2-teilig mit Falzverglasung
2-teilig Mittelverglasung
2-teilig Mittelbverglasung Schattennut
2-teilig Mittelverglasung Zierfalz
2-teilig Mittelverglasung Zierfalz beidseitig
2-teilig Mittelverglasung
2-teilig Mittelverglasung Schattennut
2-teilig Mittelverglasung Zierfalz
2-teilig Mittelverglasung Zierfalz beidseitig
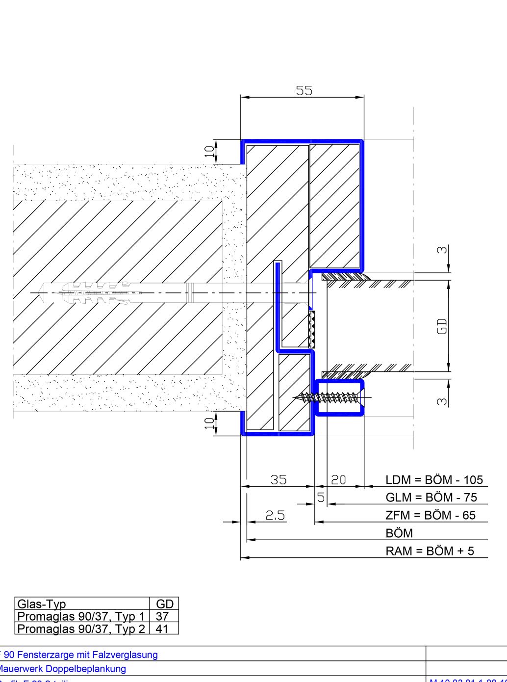
F 90
2-teilig Falzverglasung
2-teilig Falzverglasung Zierfalz
2-teilig Falzverglasung beidseitig
G 30
mit Falzverglasung
mit Falzverglasung Schattennut
mit Falzverglasung Zierfalz
mit Falzverglasung beidseitig
mit Falzverglasung
mit Falzverglasung Schattennut
mit Falzverglasung Zierfalz
mit Falzverglasung beidseitig
mit Falzverglasung Schattennut
mit Falzverglasung Zierfalz
mit Falzverglasung beidseitig
mit Falzverglasung
mit Falzverglasung Schattennut
mit Falzverglasung Zierfalz
mit Falzverglasung beidseitig
mit Falzverglasung
2-teilig mit Falzverglasung
2-teilig mit Falzverglasung Schattennut
2-teilig Falzverglasung mit Zierfalz
2-teilig mit Falzverglasung beidseitig
2-teilig mit Falzverglasung
2-teilig mit Falzverglasung Schattennut
2-teilig mit Falzverglasung Zierfalz
2-teilig mit Falzverglasung beidseitig
2-teilig mit Falzverglasung Schattennut
2-teilig mit Falzverglasung Zierfalz
2-teilig Falzverglasung beidseitig
2-teilig mit Falzverglasung
2-teilig Falzverglasung Schattennut
2-teilig Falzverglasung Zierfalz
2-teilig mit Falzverglsaung beidseitig
2-teilig mit Falzverglasung
2-teilig mit Mittelverglasung
2-teilig mit Mittelverglasung Schattennut
2-teilig mit Mittelverglasung Zierfalz
2-teilig mit Mittelverglasung Zierfalz beidseitig
2-teilig mit Mittelverglasung
2-teilig mit Mittelverglasung Schattennut
2-teilig mit Mittelverglasung Zierfalz
2-teilig mit Mittelverglsaung Zierfalz beidseitig
Ständerwerk
Norm-Profile
Eckzargen
Umfassungszargen
Schiebetürzargen
Mehrteilige Zargen
Oberlicht- Seitenteilzargen
Fenster
Anker- Befestigungssysteme
Brandschutzfenster
Anhang
Schwellen
Obentürschliesser
Schlossbereich
E-Oeffner - Fluchttüroeffner
Magnetkontakte
Riegelschaltkontakte
Kabelübergänge
Mehrfachverriegelungen
BSS - Sperrelemente - Türspaltsicherung
Kippfenster - Schiebefenster
Montagevideos
Mauerwerkszargen einteilig
Mauerwerkszargen zweiteilig
Ständerwerkszargen einteilig
Ständerwerkszargen zweiteilig
Bestellformulare
Startseite
Mauerwerkszargen
Brandschutzfenster
F 90
2-teilig Falzverglasung
Norm-Profile
Eckzargen
Umfassungszargen
Schiebtürzargen
Mehrteilige Zargen
Oberlicht- Seitenteilzargen
Fensterzargen
Anker- Befestigungssysteme
Brandschutzfenster
F 30
F 90
2-teilig Falzverglasung
2-teilig Falzverglasung Zierfalz
2-teilig Falzverglasung beidseitig
G 30
PDF Download
Copyright 2013-2024 Novoferm Vertriebs GmbH