Suchbegriff
Einleitung
Wir über uns
Allgemeine Grundlagen
Einbaurichtlinien + Montageanleitungen
Werkstoffe für Zargen
Beschichtungen
Dichtungen
Bandunterkonstruktionen
Mauerwerkszargen
Norm-Profile
Eckzargen
Umfassungszargen
Schiebtürzargen
Mehrteilige Zargen
Oberlicht- Seitenteilzargen
Fensterzargen
Anker- Befestigungssysteme
Brandschutzfenster
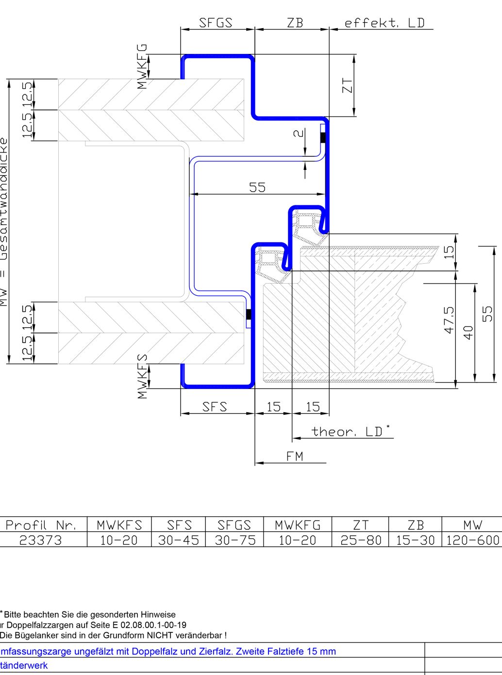
Ständerwerk
Norm-Profile
Eckzargen
Umfassungszargen
Normal
gefälzt
stumpf
Radius
gefälzt
stumpf
Schattennut
gefälzt
stumpf
Doppeltür
gefälzt
stumpf
Zierfalz
gefälzt
stumpf
Doppelfalz
gefälzt
stumpf
Dehnungsfugenzarge
gefälzt
stumpf
Durchgangszargen
Durchgangszarge
Durchgangszarge mit Radius
Durchgangszarge mit Schattennut
Pendeltürzargen
Pendeltuerzarge
Pendeltuerzarge
Bleiauskleidung
gefälzt
stumpf
schräge Leibung
gefälzt
stumpf
Schiebetürzargen
Mehrteilige Zargen
Oberlicht- Seitenteilzargen
Fenster
Anker- Befestigungssysteme
Brandschutzfenster
Anhang
Schwellen
Obentürschliesser
Schlossbereich
E-Oeffner - Fluchttüroeffner
Magnetkontakte
Riegelschaltkontakte
Kabelübergänge
Mehrfachverriegelungen
BSS - Sperrelemente - Türspaltsicherung
Kippfenster - Schiebefenster
Montagevideos
Mauerwerkszargen einteilig
Mauerwerkszargen zweiteilig
Ständerwerkszargen einteilig
Ständerwerkszargen zweiteilig
Bestellformulare
Startseite
Ständerwerk
Umfassungszargen
Doppelfalz
stumpf
Doppelfalz und Zierfals. 2.FT 15
Norm-Profile
Eckzargen
Umfassungszargen
Normal
Radius
Schattennut
Doppeltür
Zierfalz
Doppelfalz
gefälzt
stumpf
Doppelfalz. 2.FT 15
Doppelfalz. 2.FT 20
Doppelfalz. 2.FT 25
Doppelfalz und Radius. 2.FT 15
Doppelfalz und Radius. 2.FT 20
Doppelfalz und Radius. 2.FT 25
Doppelfalz und beidseitiger Schattennut. 2.FT 15
Doppelfalz und beidseitiger Schattennut. 2.FT 20
Doppelfalz und beidseitiger Schattennut. 2.FT 25
Doppelfalz und Schattennut auf der Falzseite. 2.FT 15
Doppelfalz und Schattennut auf der Falzseite. 2.FT 20
Doppelfalz und Schattennut auf der Falzseite. 2.FT 25
Doppelfalz und Schattennut auf der Falzgegenseite. 2.FT 15
Doppelfalz und Schattennut auf der Falzgegenseite. 2.FT 20
Doppelfalz und Schattennut auf der Falzgegenseite. 2.FT 25
Doppelfalz und Zierfals. 2.FT 15
Doppelfalz und Zierfals. 2.FT 20
Doppelfalz und Zierfals. 2.FT 25
Dehnungsfugenzarge
Durchgangszargen
Pendeltürzargen
Bleiauskleidung
schräge Leibung
Schiebetürzargen
Mehrteilige Zargen
Oberlicht- Seitenteilzargen
Fenster
Anker- Befestigungssysteme
Brandschutzfenster
PDF Download
Copyright 2013-2024 Novoferm Vertriebs GmbH