Suchbegriff
Einleitung
Wir über uns
Allgemeine Grundlagen
Einbaurichtlinien + Montageanleitungen
Werkstoffe für Zargen
Beschichtungen
Dichtungen
Bandunterkonstruktionen
Mauerwerkszargen
Norm-Profile
Eckzargen
Umfassungszargen
Schiebtürzargen
Mehrteilige Zargen
Oberlicht- Seitenteilzargen
Fensterzargen
Anker- Befestigungssysteme
Brandschutzfenster
Ständerwerk
Norm-Profile
Eckzargen
Umfassungszargen
Schiebetürzargen
Mehrteilige Zargen
Oberlicht- Seitenteilzargen
Fenster
Anker- Befestigungssysteme
Brandschutzfenster
Anhang
Schwellen
Obentürschliesser
DORMA
TS 71
TS 72
TS 73V
TS 73 EMF
TS 83
TS 90
TS 90
TS 91
TS 92
TS 92 XEA B Bandseite
TS 93
TS 93 EMF
TS 93 EMR
TS 93 G-SR
TS 93 G-SR EMF
TS 93 G-SR EMR
TS 97
TS 99 FL
TS 99 FLR-K
TS 99 FLR-K
PORTEO
ITS 96
GEZE
TS 1000 C
TS 1500
TS 2000 NV
TS 2000 V
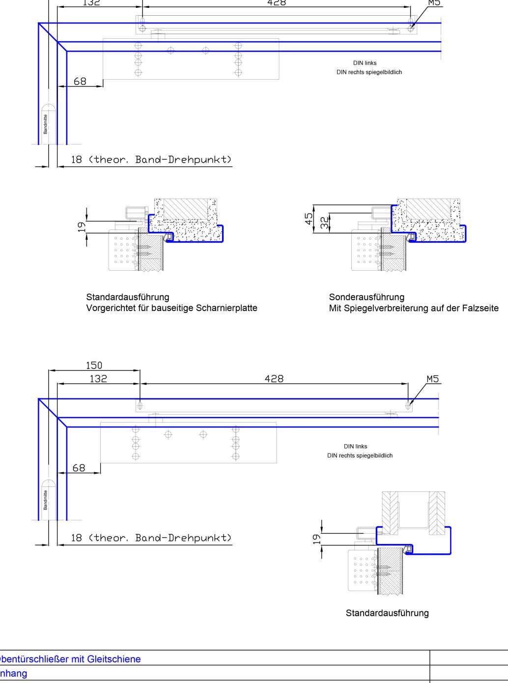
TS 2000 V mit Gleitschiene
TS 4000 Gr.1-6
TS 4000 Gr.5-7
TS 4000 E
TS 4000 R
TS 4000 EFS
TS 4000 RFS
TS 1500 G
TS 3000 V
TS 5000 RFS
TS 5000 ISM
TS 5000 R-ISM links
TS 5000 R-ISM rechts
TS 5000 E-ISM links
TS 5000 E-ISM rechts
TS 5000
TS 5000 E
TS 5000 R
TS 5000 EFS
Boxer
ECO
TS 14
TS 15
TS 20
TS 50
TS 15 K
TS 31 K
TS 31 B
TS 41 K
TS 41 B
TS 51
TS 61
Multi-Genius aufliegend
Multi-Genius
FTS 63 R
GU - BKS
TS 440 G
TS 440
EFFEFF
DC 700
DC 700G FMS
Novoferm
NF GS 50
Schlossbereich
E-Oeffner - Fluchttüroeffner
Magnetkontakte
Riegelschaltkontakte
Kabelübergänge
Mehrfachverriegelungen
BSS - Sperrelemente - Türspaltsicherung
Kippfenster - Schiebefenster
Montagevideos
Mauerwerkszargen einteilig
Mauerwerkszargen zweiteilig
Ständerwerkszargen einteilig
Ständerwerkszargen zweiteilig
Bestellformulare
Startseite
Anhang
Obentürschliesser
DORMA
TS 92
Schwellen
Obentürschliesser
DORMA
TS 71
TS 72
TS 73V
TS 73 EMF
TS 83
TS 90
TS 90
TS 91
TS 92
TS 92 XEA B Bandseite
TS 93
TS 93 EMF
TS 93 EMR
TS 93 G-SR
TS 93 G-SR EMF
TS 93 G-SR EMR
TS 97
TS 99 FL
TS 99 FLR-K
TS 99 FLR-K
PORTEO
ITS 96
GEZE
ECO
GU - BKS
EFFEFF
Novoferm
Schlossbereich
E-Oeffner - Fluchttüroeffner
Magnetkontakte
Riegelschaltkontakte
Kabelübergänge
Mehrfachverriegelungen
BSS - Sperrelemente - Türspaltsicherung
Kippfenster - Schiebefenster
PDF Download
Copyright 2013-2024 Novoferm Vertriebs GmbH